-
0
ОПИСАНИЕ
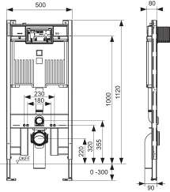
Модуль унитаза с системой монтажа панелей смыва «easy fit» для крепления на профиле TECEprofil или монтажа в металлических или деревянных каркасных стенах, перед стеной или в углу. Также подходит для сборки отдельного блока.
Сливной бачок Octa II 8 см для фронтальной установки панели смыва:
- Надежный бак из ударопрочного пластика, протестирован в соответствии с EN.
- Предварительно собранный и опломбированный сливной бачок.
- Соединение для сливного бачка с наружной резьбой R 1/2" сверху, подходит для адаптеров быстрого подсоединения.
- Объем бачка 7 литров. Предустановленный объем большого смыва — 6 литров. Можно настроить объем смыва 4,5 литра. Объем малого смыва — 3 литра для системы двойного смыва. Возможность установки объема смыва 4/2 литра.
- Изоляция для предотвращения образования конденсата.
- Подходит для панелей унитаза TECE.
- Можно использовать как бачок с системой одинарного или двойного смыва.
- Система установки панелей смыва «easy fit».
- Монтажный туннель для технологического отверстия, может быть укорочен без инструментов.
- Бесшумный гидравлический заливной клапан, группа фитингов 1, в соответствии с DIN.
Рама модуля:
- Самонесущая, с порошковым покрытием.
- Две крепежные шпильки M12 с гайками.
- Фановый отвод унитаза DN 90/90 PE-HD, включая защитную заглушку.
- Соединительный комплект унитаза DN.
- Подходит для возвышения пола до 30 см.
- Установочное расстояние шпилек унитаза 180 или 230 мм.
- В комплект входит настенное крепление.
Дополнительно приобретается:
- Панель смыва унитаза (см. панели смыва).
- Крепежные элементы для монтажа отдельных блоков перед стеной, в углах или в деревянных каркасных конструкциях.
- Монтажный комплект TECEone (арт. 9880056) (опционально).
- Адаптер фанового отвода 90/110 мм (арт. 9820136) (опционально).
-
01
Доставка по Алматы – Бесплатно (на сумму от 200 000 тенге)
-
02
Доставка по Казахстану – в течении 3-10 дней
-
03
Безналичный расчет для ЮР лиц
-
04
Оплата по счету
-
05
Картами VISA и MasterCard
-
06
Наличными
Популярные товары
ПОПУЛЯРНЫЕ ВОПРОСЫ, КОТОРЫЕ ЗАДАЮТ КОМАНДЕ НАШИХ СПЕЦИАЛИСТОВ
Вы занимаетесь проектированием?
Да, наша компания занимается проектированием систем отопления, вентиляции и кондиционирования. Мы предоставляем полный спектр услуг, начиная от анализа потребностей и заканчивая разработкой и внедрением комплексных решений для обеспечения комфортных и энергоэффективных условий в различных помещениях. Если у вас есть дополнительные вопросы или требуется более подробная информация, пожалуйста, свяжитесь с нами, и наши специалисты будут рады помочь вам.
Как можно оплатить Ваши услуги?
Мы предлагаем несколько вариантов оплаты наших услуг, чтобы сделать процесс максимально удобным для наших клиентов: Безналичный расчет: оплата по выставленному счету. Банковские карты: оплата через POS-терминалы. Онлайн-платежи: с использованием различных платежных систем. Если у вас возникли дополнительные вопросы по оплате, пожалуйста, свяжитесь с нами, и наши менеджеры с удовольствием предоставят всю необходимую информацию и помогут выбрать наиболее удобный способ оплаты.
Какие условия доставки и оплаты предлагает ваша компания?
Наша компания предлагает следующие условия доставки и оплаты: Бесплатная доставка по Алматы при заказе на сумму от 200 000 тенге. Доставка по всему Казахстану в течение 3-10 дней. Возможность безналичного расчета для юридических лиц. Оплата по счету. Принимаем оплату картами VISA и MasterCard. Возможна оплата наличными. Наши специалисты постоянно обновляют свои знания, чтобы обеспечить вам лучшее качество обслуживания. Если у вас возникли дополнительные вопросы или вы хотели бы получить подробную информацию о доставке, не стесняйтесь связаться с нами.
Имеется ли у Вас доставка продукции и дополнительных материалов на объект?
Да, у нашей компании Warmsystems имеется услуга доставки продукции и дополнительных материалов на объект. Мы понимаем, насколько важно своевременное и качественное обеспечение объектом всеми необходимыми материалами, поэтому предлагаем доставку оборудования и комплектующих непосредственно на место установки. Если у вас возникли дополнительные вопросы или вы хотите оформить заказ на доставку, пожалуйста, свяжитесь с нами, и наши менеджеры с радостью помогут вам.
Какие документы и сертификаты у Вас имеются на ваше оборудование и услуги?
Да, оставьте заявку и эксперт компании WARMSYSTEMS разработает проект
Предоставляете ли Вы гарантии?
Да, мы предоставляем гарантию на все наши услуги и оборудование. Мы уверены в качестве нашей работы и используемых материалов, поэтому предлагаем гарантийные обязательства, которые включают сервисное обслуживание и устранение любых неисправностей в течение гарантийного срока. Подробности о гарантийных условиях можно узнать у наших специалистов или на странице гарантий на нашем сайте. Если у вас возникли дополнительные вопросы, пожалуйста, свяжитесь с нами, и мы с радостью предоставим всю необходимую информацию.
Выполняют ли Ваши специалисты монтаж нашего оборудования?
Да, наши специалисты выполняют монтаж вашего оборудования. Мы предоставляем услуги профессионального монтажа, чтобы гарантировать корректную установку и бесперебойную работу систем отопления, вентиляции и кондиционирования. Наши опытные монтажники следят за всеми этапами установки, от первичной проверки до окончательного запуска системы. Если у вас есть дополнительные вопросы или вам нужна консультация по монтажу, пожалуйста, свяжитесь с нами, и мы с радостью вам поможем.
Качественную ли продукцию и материалы Вы реализуете и применяете при проектировании?
Да, мы применяем только качественную продукцию и материалы при поставке и проектировании. Мы сотрудничаем с проверенными поставщиками, такими как Buderus,Almacom, Samsung и другими, а также используем сертифицированные материалы, чтобы гарантировать надежность и долговечность наших систем. Наши специалисты тщательно выбирают оборудование и комплектующие, чтобы обеспечить максимальную эффективность и комфорт для наших клиентов.
Какие услуги Ваша компания предоставляет в области инженерных систем?
Наша компания предоставляет полный спектр услуг в области инженерных систем, включая: 1) Продажу инженерного оборудования оптом и в розницу, предлагая широкий выбор оборудования высокого качества от ведущих производителей. 2) Проектирование инженерных систем с консультациями, расчетами мощности и подбором оптимальных материалов. 3) Поставку оборудования и материалов, а также монтажные работы. 4) Профессиональное обслуживание и ремонт систем отопления, водоснабжения, водоотведения и канализации. 5) Установку систем отопления, водоснабжения, канализации, включая сборку трубопроводов, подключение насосных станций, водонагревателей, фильтров очистки и счетчиков. 6) Работы с системами канализации, включая правильный уклон и подбор диаметра труб, установку септиков и станций биологической очистки. 7) Пуско-наладочные работы и гарантийное обслуживание. 8) Мы предлагаем клиентам полный цикл услуг в области инженерных систем, чтобы обеспечить надежность и эффективность их инженерных систем.
Достаточно ли объектов Вы выполнили и возможно ли доверять Вашей компании?
Наша компания Warmsystems успешно завершила более 300 проектов по установке инженерных систем за последние 5 лет. Это включает в себя различные объекты, такие как блочно-модульные котельные, частные дома различных площадей, дома с банными комплексами и многие другие. Мы стремимся к высокому качеству и профессионализму в каждом проекте, предоставляя комплексные решения от проектирования до монтажа и пуско-наладочных работ. Наши клиенты могут быть уверены в качестве наших услуг и оборудования, так как мы имеем большой опыт работы и предоставляем все необходимые документы и сертификаты на нашу продукцию. Доверие наших клиентов - это наша главная ценность, и мы всегда стремимся оправдать это доверие высоким качеством работы и индивидуальным подходом к каждому проекту.
Оставьте заявку на расчёт прямо сейчас и получите в подарок*
- проект инженерных систем бесплатно
- стабилизатор напряжения для защиты системы отопления
*Подарок по акции предоставляется при подписании договора на монтаж
ОСТАВЬТЕ ВАШ НОМЕР ТЕЛЕФОНА ДЛЯ БЕСПЛАТНОЙ КОНСУЛЬТАЦИИ
ПРИЕЗЖАЙТЕ К НАМ В ОФИС
Посмотрите образцы материалов и оборудования, а мы поможем определиться с выбором и посчитаем предварительную смету
г. Алматы, ул.Торетай 30 "А",
БЦ "BSD" 3 этаж
Пн – ПТ 9:00 до 18:00

